Licht Luft Loft
2018
Luftiger geht es nicht mehr. Wenn man die Haustür öffnet, präsentiert sich eine helle zweigeschossige Loftwohnung.
Eine lange Treppe ins obere Geschoss zieht sich wie eine Linie durch den Raum. Ein Mittelpunkt und gleichzeitig Gestaltungsmoment für die Frontwand. Die unterschiedlichen Materialien – Holz, Glas und Mamor – wirken wie dreidimensionale Schichten an der Wand und fügen sich zu einem harmonischen Gesamtbild zusammen. Sie ziehen sich wie ein Ader durch alle Räume.
Die Wand ist auch gleichzeitig Funktionselement für Stauraum mit integriertem Sideboard. Eine zweite Decke zieht sich wie eine zweite Gesteinsschicht in der Marmorwand der Treppe. Im Essraum suggerieren viele Lichtkugeln über den Tisch eine zweite Decke im Raum. Alle Gestaltungselemente sind Rückhalt gegenüber der Offenheit der Fensterfront. Diese wird umsäumt von einer umlaufenden Terrasse. Eine Kleinoase, parkähnlich – und im Sommer ein zweiter Lebensraum.
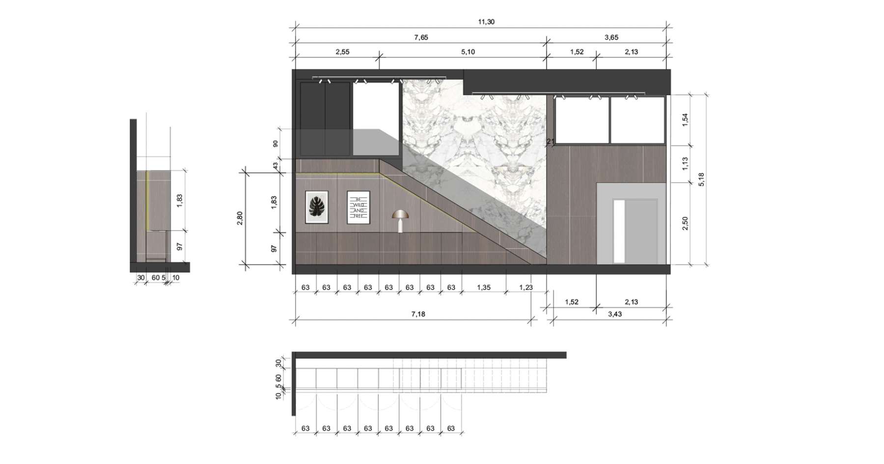
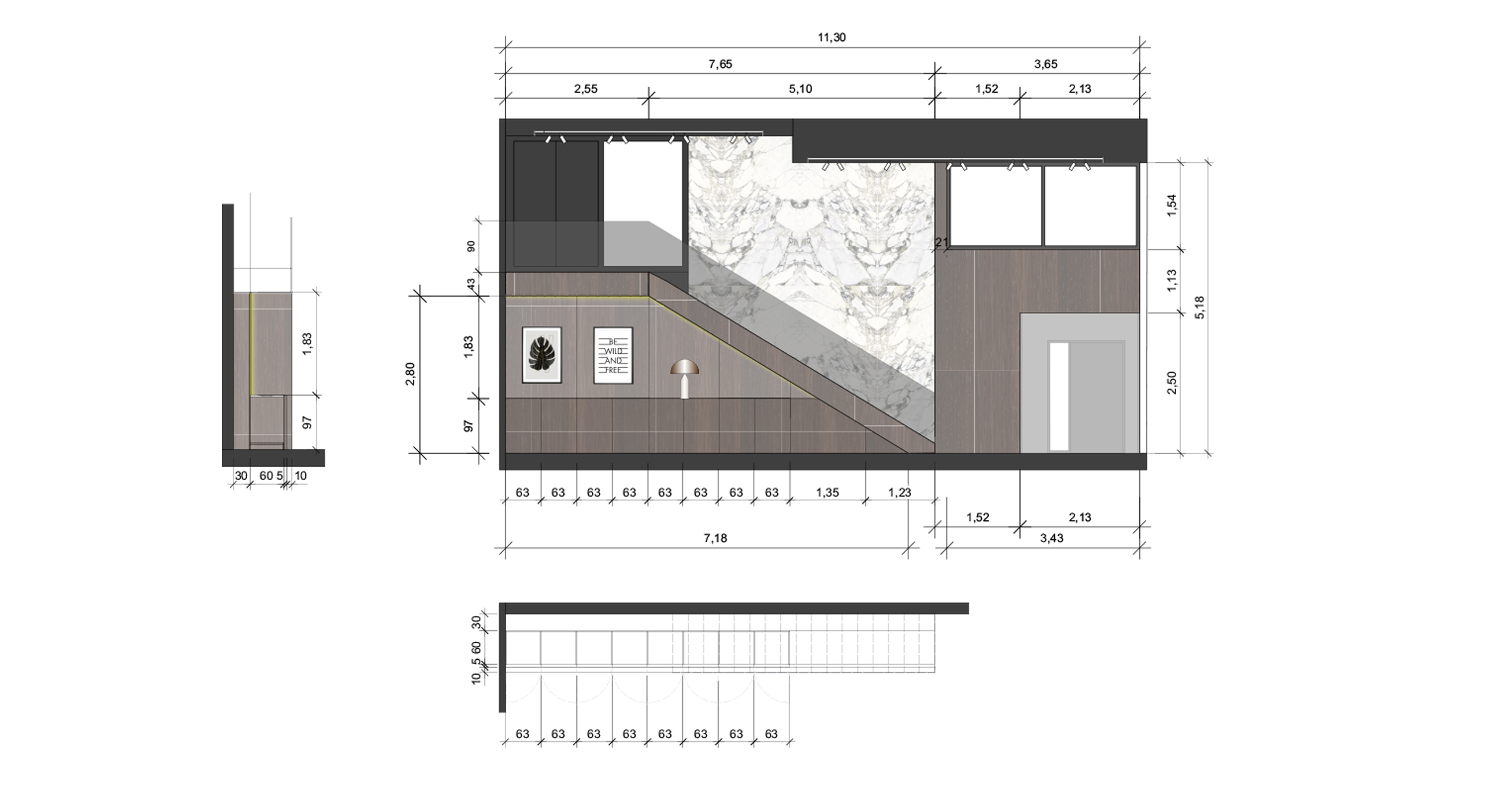
Wandansicht Flur

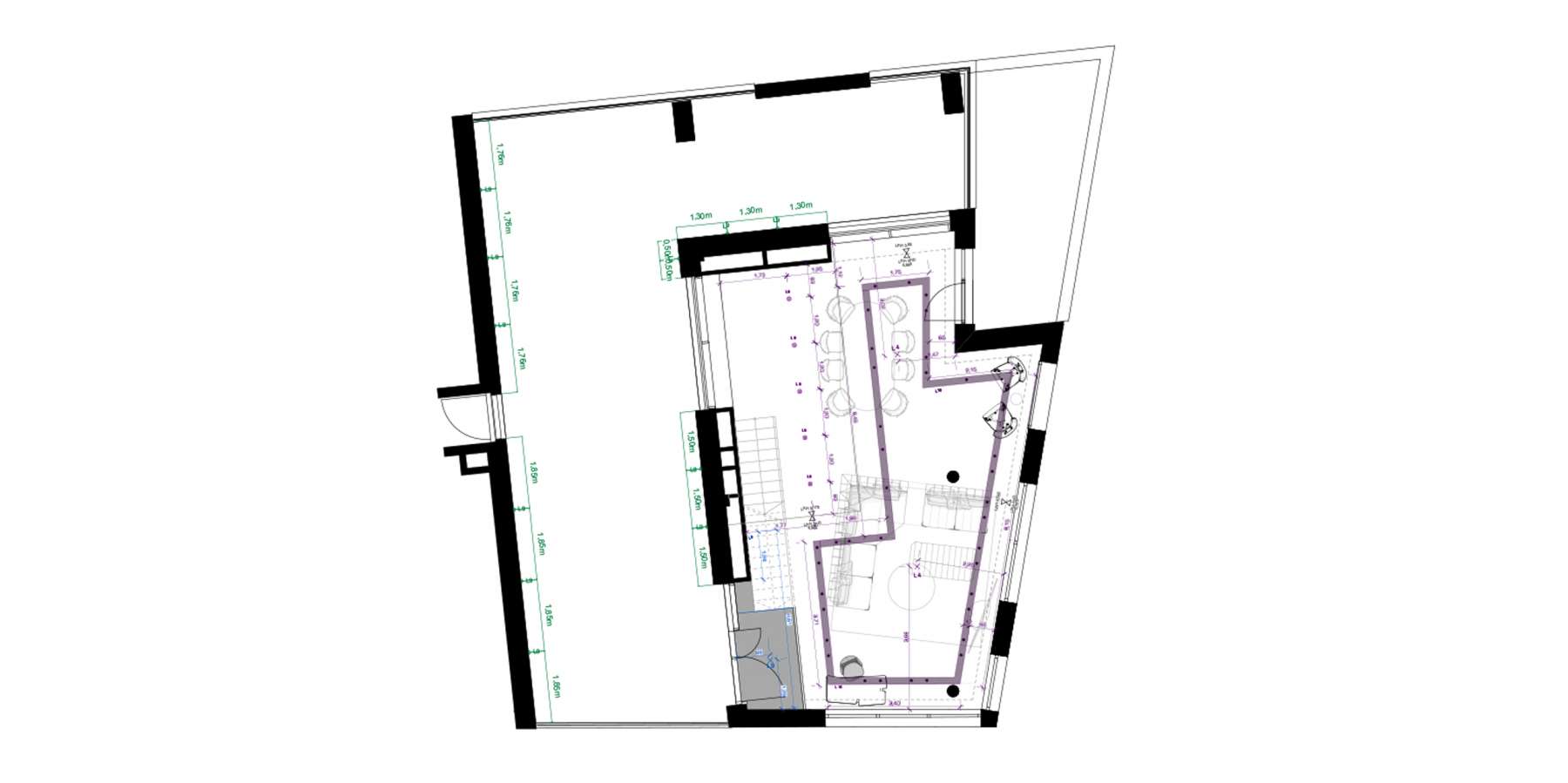
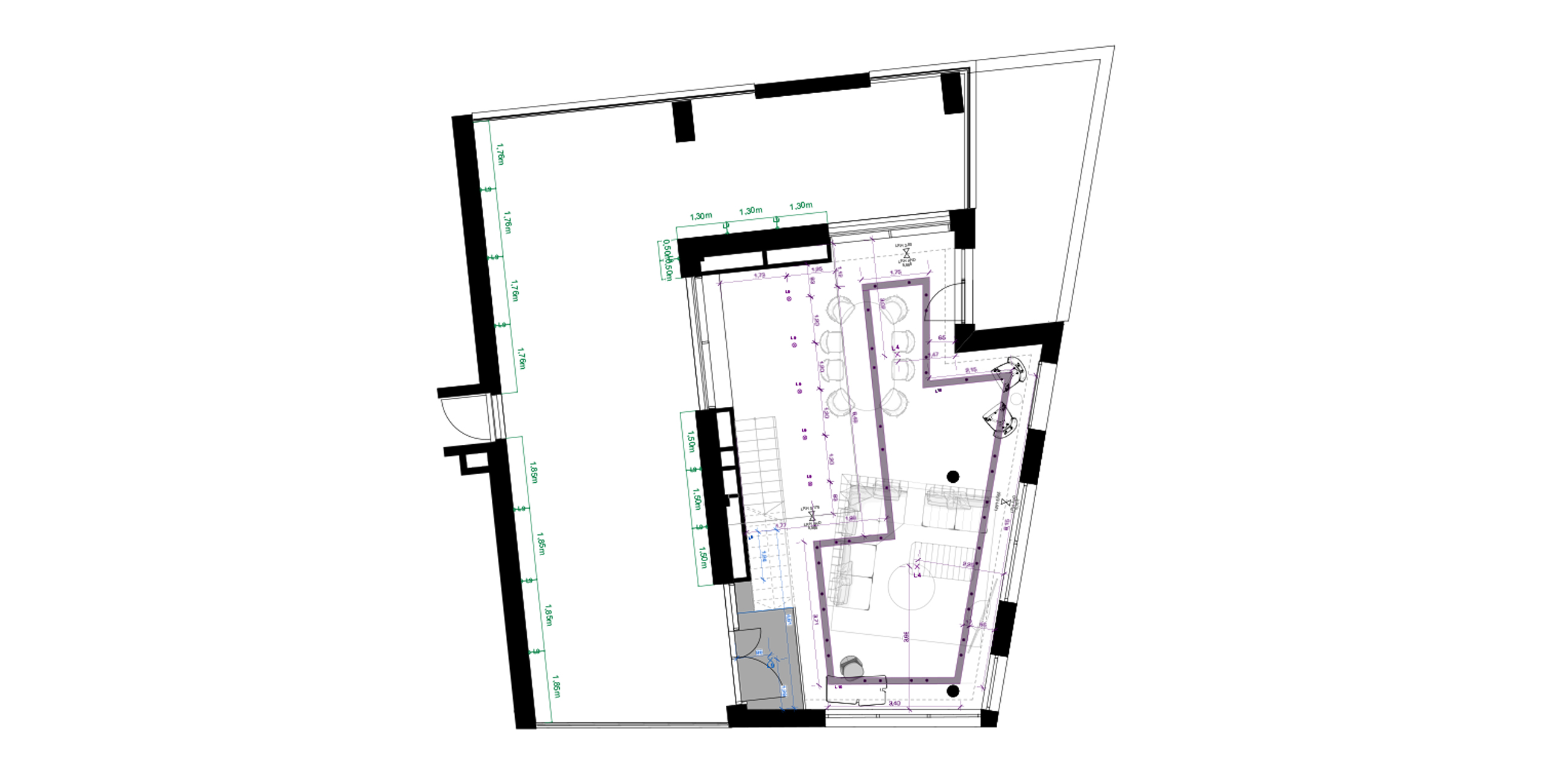
Beleuchtungsplan

Wandansicht Flurbereich


Treppe Ansicht und Details


Master Bad Grundriss



