Urban Science München
2018
Mit weltweit 20 Standorten und mehr als 900 Beratern bietet Urban Science Kunden aus der Automobilindustrie seit mehr als 30 Jahren ein breites Spektrum an Dienstleistungen im Bereich der Vertriebsoptimierung. Die neuen Räume in Frankfurt und München, als Franchisekonzept geplant, sind futuristische Plattformen für genau diese zielgerichtete kompetente Beratung der Kunden.
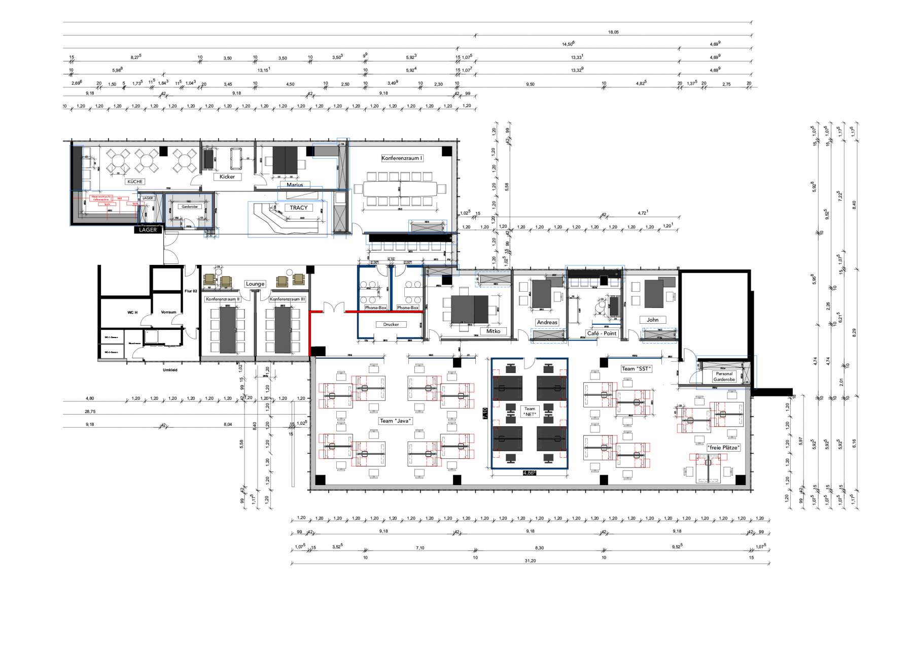
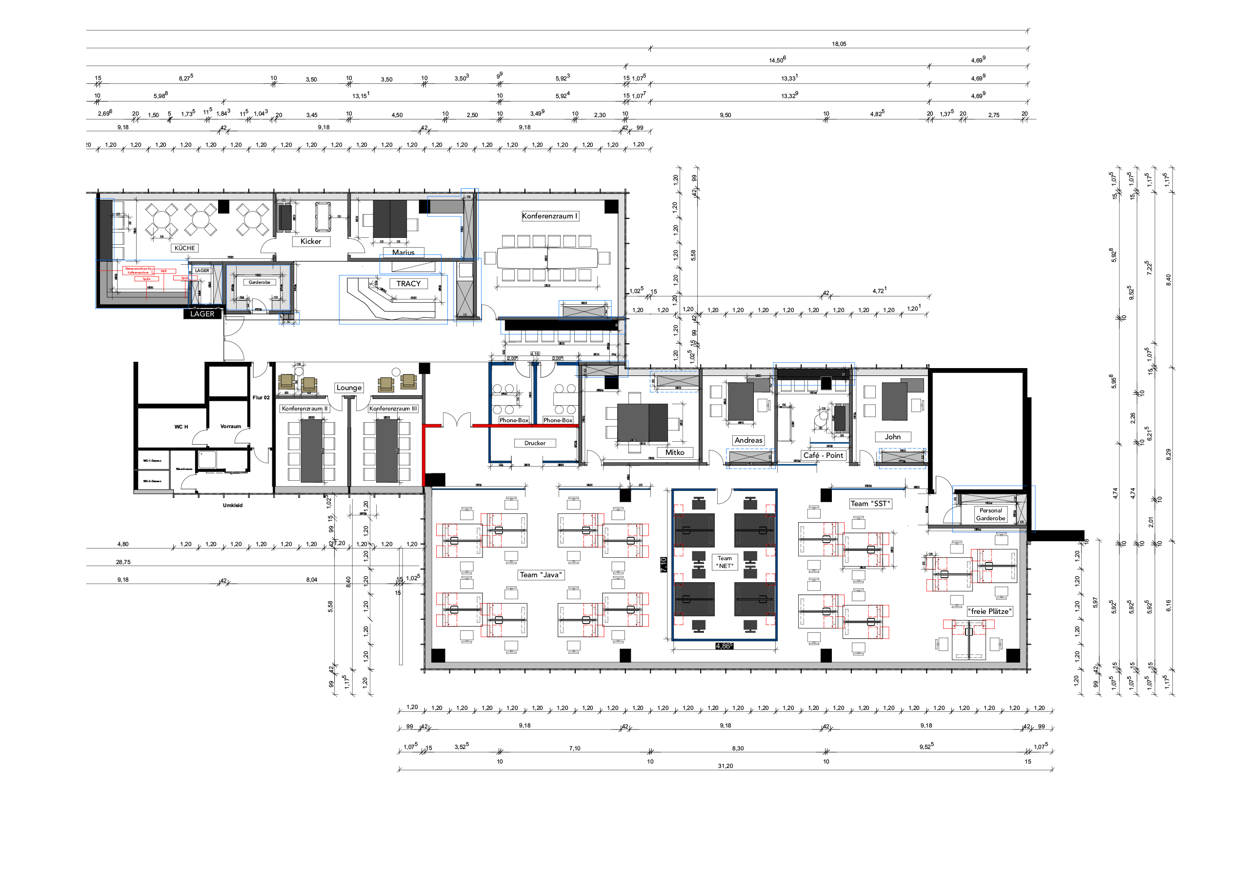
Die Vorabanalyse neuer Bürostrukturen unter Einbeziehung der verschiedenen Arbeitsprozesse, reflektieren ein schlüssiges einzigartiges neues Bürokonzept. Der aus Dreiecksfacetten dreidimensionale reinweiße Empfangstresen sieht aus wie ein spaciges Raumgefährt. Dazu bilden 360° Laserlampen scharfe Linien an der Decke.
Das ganze Beleuchtungskonzept ist metallen mit Strukturen, die das Licht phantastisch brechen und interessante Muster an die Wände strahlen. Die Sofas sind mit Hightech Stoffen bezogen.Der Boden ist, mit seinem verschiedenfarbenen Diagonalsegmenten, Plattform für diese neue ungewöhnliche inspirative Bürowelt. Im Sinne des Fortschrittes wurden, dem Brand von Urban Science entsprechend, in jedem Raum Akustikpaneele oder Wände mit futuristisch technischen Motive ausgesucht und in Szene gesetzt. Selbst an der Küchenfront erstrahlt in warmen Farben eine vergrösserte Computergrafikkarte und Platinen, die die Vernetzung zur Außenwelt darstellen. Speziell entwickelte Akustik-Phoneboxen in der Konferenzzone sollten Abwechslung und zugleich Rückzug ermöglichen.
Eigens entwickelte höhenverstellbare Schreibtische erleichtern die Arbeit und bieten nach den Arbeitsstättenrichtlinien den Mitarbeitern ein gesundes, körpergerechtes Arbeiten. Technik auf aktuellstem Stand. Zellenbüros aber auch Open Space Areas unterbrochen mit Glasboxen, hoch technisch ausgerüsteten Konferenzräumen, sowie Coffee Vending Points bieten ein buntes Raumgefüge für zeitgerechtes, entspanntes und teamorientiertes Arbeiten.


Akustikwände


Schreinerleistungen




